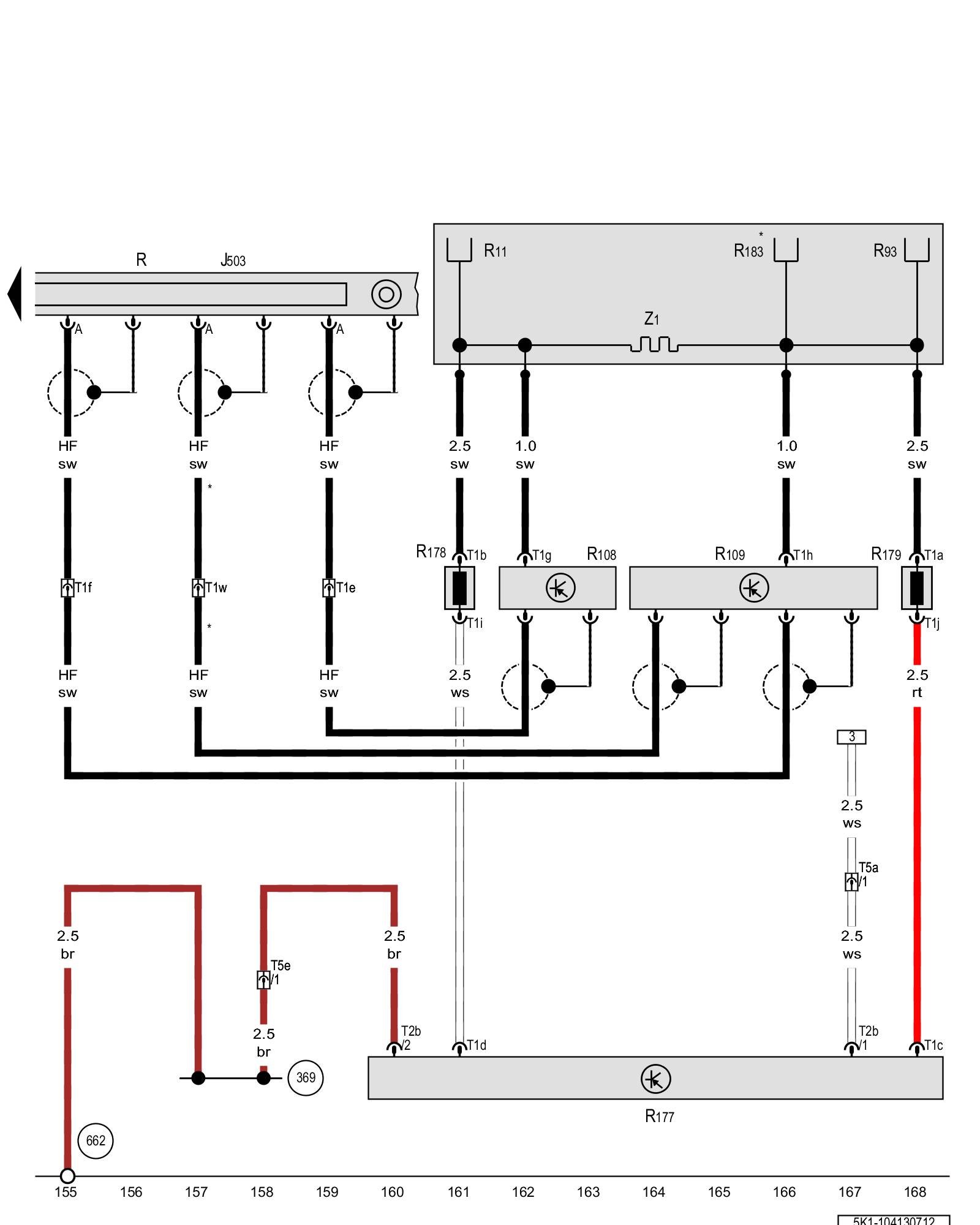
Diagram 104/13 (Tracks 155-168)
IMPORTANT NOTE:
This manufacturer uses "Track" style wiring diagrams.
For information on how to use these diagrams effectively, please refer to Diagram Information and Instructions. Diagram Information and Instructions
Radio/navigation display unit control module, Radio, Antenna, Left antenna module, Right antenna module, FM frequency filter in negative wire, FM frequency filter in positive wire, Rear window defogger

ws = white
sw = black
ro = red
br = brown
gn = green
bl = blue
gr = grey
li = lilac
ge = yellow
or = orange
rs = pink
J503 - Radio/navigation display unit control module
Locations
R - Radio
Locations
R11 - Antenna
Locations
R93 - Radio antenna 2
Locations
R108 - Left antenna module
Locations
R109 - Right antenna module
Locations
R177 - AM frequency filter, in the rear lid
Locations
R178 - FM frequency filter in negative wire, in the rear lid
Locations
R179 - FM frequency filter in positive wire, in the rear lid
Locations
R183 - Digital radio antenna
Locations
T1a - Single connector
T1b - Single connector
T1c - Single connector
T1d - Single connector
T1e - Single connector, behind the right C-pillar trim panel Overview of connector stations and connectors
T1f - Single connector, behind the right C-pillar trim panel Overview of connector stations and connectors
T1g - Single connector
T1h - Single connector
T1i - Single connector
T1j - Single connector
T1w - Single connector, behind the right C-pillar trim panel
T2b - Double connector
T5a - 5-pin connector, in the left rear side panel Overview of connector stations and connectors
T5e - 5-pin connector, in the left rear side panel Overview of connector stations and connectors
Z1 - Rear window defogger
(369) - Ground connection 4 (in main wiring harness)
(662) - Ground connection in left rear side panel Overview Of Ground Connections in Luggage Compartment
* - Only for vehicles with a digital radio
Previous Diagram 104/12 (Tracks 141-154)
Next Diagram 104/14 (Tracks 169-182)