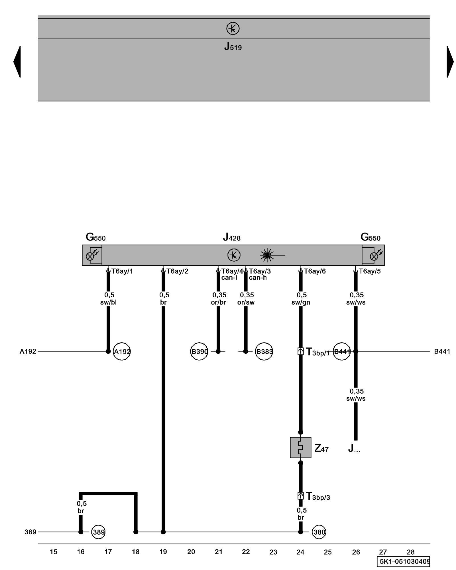
Diagram 51/3 (Tracks 15-28)
IMPORTANT NOTE:
This manufacturer uses "Track" style wiring diagrams.
For information on how to use these diagrams effectively, please refer to Diagram Information and Instructions. Diagram Information and Instructions
Distance Regulation Control Module, Ground for Automatic Distance Control, Distance Regulation Sensor Heater

ws = white
sw = black
ro = red
br = brown
gn = green
bl = blue
gr = grey
li = lilac
ge = yellow
or = orange
rs = pink
G550 - Ground for Automatic Distance Control
J428 - Distance Regulation Control Module, near front interior mirror
J519 - Vehicle Electrical System Control Module Control modules in front part of vehicle - Overview of Control Modules
J... - Engine Control Modules (ECM)
T3bp - 3-Pin Connector, near front interior mirror
T6ay - 6-Pin Connector
Z47 - Distance Regulation Sensor Heater
(380) - Ground Connection 15 (in main wiring harness)
(389) - Ground Connection 24 (in main wiring harness)
(A192) - Plus Connection 3 (15a) (in instrument panel wiring harness)
(B383) - Powertrain CAN-Bus High Connection 1 (in main wiring harness)
(B390) - Powertrain CAN-Bus Low Connection 1 (in main wiring harness)
(B441) - Cruise Control Connection (in main wiring harness)
Previous Diagram 51/2 (Tracks 1-14)
Next Diagram 51/4 (Tracks 29-42)