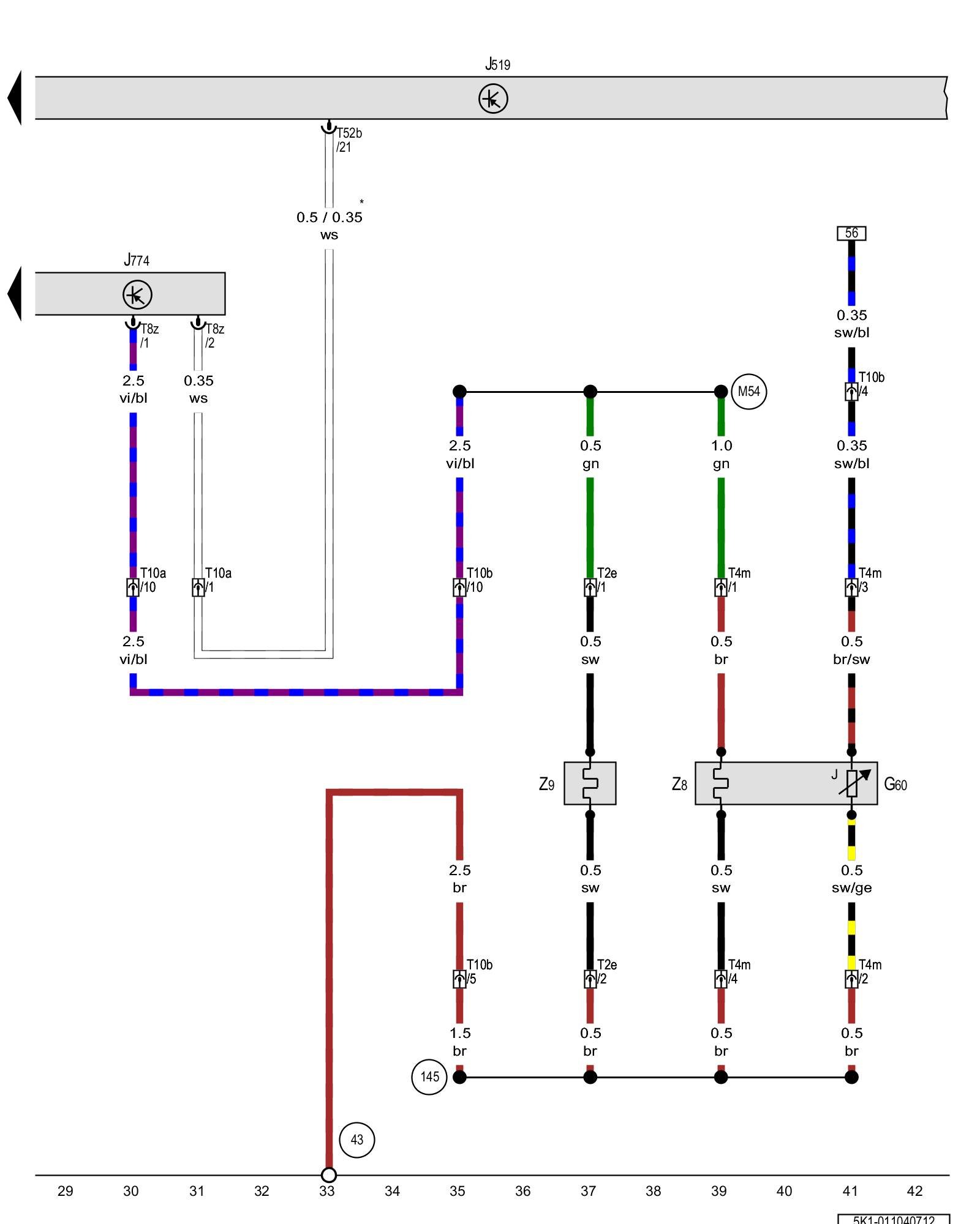
Diagram 11/4 (Tracks 29-42)
IMPORTANT NOTE:
This manufacturer uses "Track" style wiring diagrams.
For information on how to use these diagrams effectively, please refer to Diagram Information and Instructions. Diagram Information and Instructions
Front passenger heated seat temperature sensor, Vehicle electrical system control module, Front seat heating control module, Front passenger seat heating element, Front passenger backrest heating element

ws = white
sw = black
ro = red
br = brown
gn = green
bl = blue
gr = grey
li = lilac
ge = yellow
or = orange
rs = pink
G60 - Front passenger heated seat temperature sensor Heated Front Pass Seat -G60- / -Z8- / -Z33-
J519 - Vehicle electrical system control module Control modules in front part of vehicle - Overview of Control Modules
J774 - Front seat heating control module, under the driver seat Control Modules in The Rear Of The Vehicle [1][2]Diagrams
T2e - Double connector, under the driver seat
T4m - 4-pin connector, under the driver seat
T8z - 8-pin connector
T10a - 10-pin connector, under the driver seat Overview of connector stations and connectors
T10b - 10-pin connector, under the front passenger seat Overview of connector stations and connectors
T52b - 52-pin connector
Z8 - Front passenger seat heating element Heated Front Pass Seat -G60- / -Z8- / -Z33-
Z9 - Front passenger backrest heating element Front Pass Backrest Heating Element -Z9-
(43) - Ground connection on A-pillar, lower right Overview Of Ground Connections in Interior
(145) - Ground connection 3 (in heated seats wiring harness)
(M54) - Connection 4 (in front passenger seat wiring harness)
* - from November 2010
Previous Diagram 11/3 (Tracks 15-28)
Next Diagram 11/5 (Tracks 43-56)