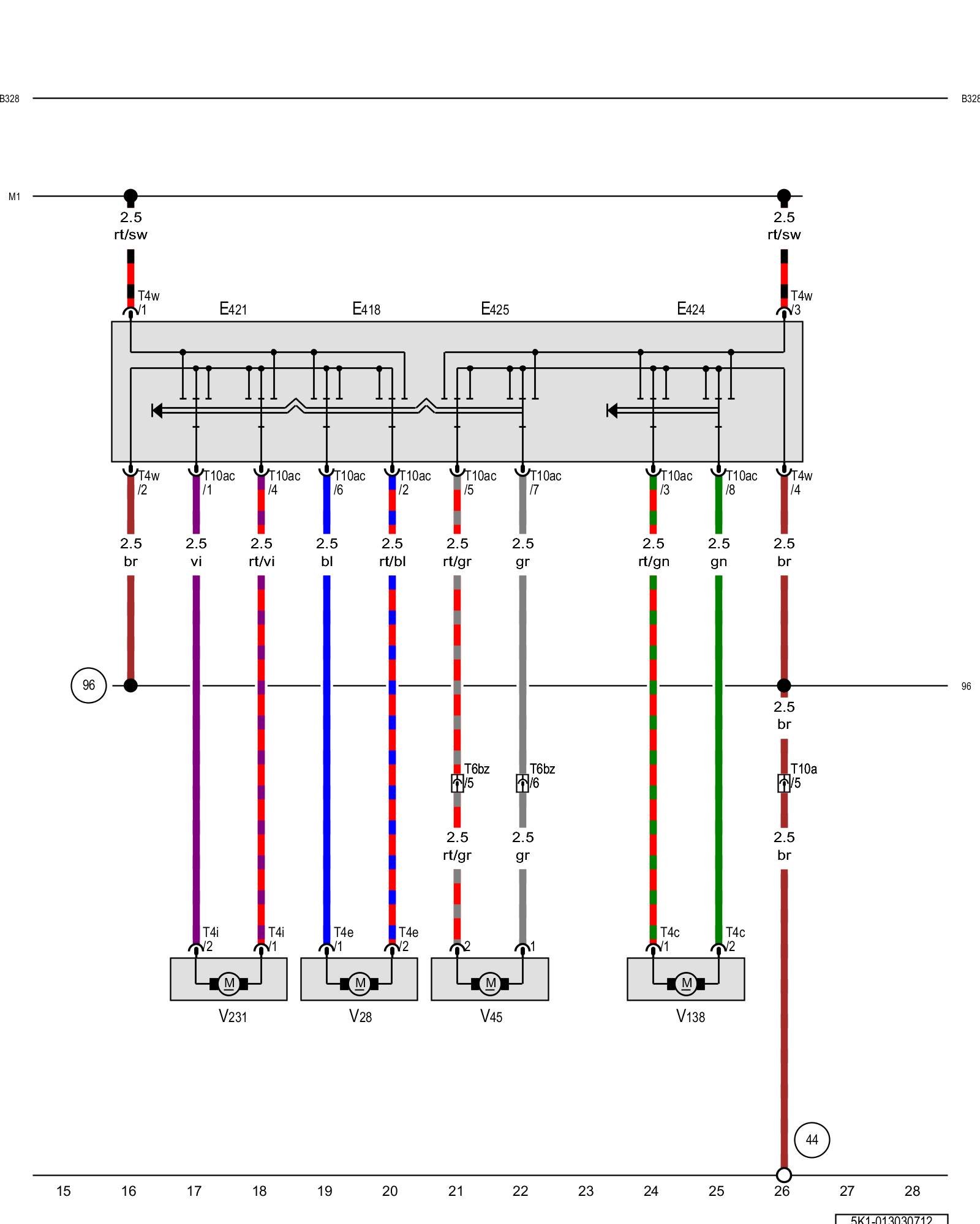
Diagram 13/3 (Tracks 15-28)
IMPORTANT NOTE:
This manufacturer uses "Track" style wiring diagrams.
For information on how to use these diagrams effectively, please refer to Diagram Information and Instructions. Diagram Information and Instructions
Seat forward/back adjustment button, Angle adjustment button, Seat height adjustment button, Backrest adjustment button, Driver seat forward/back adjustment motor, Driver backrest adjustment motor, Driver seat height adjustment motor, Seat angle adjustment motor

ws = white
sw = black
ro = red
br = brown
gn = green
bl = blue
gr = grey
li = lilac
ge = yellow
or = orange
rs = pink
E418 - Seat forward/back adjustment button Master Seat Switch -E418- / -E421- / -E424- / -E425-
E421 - Angle adjustment button Master Seat Switch -E418- / -E421- / -E424- / -E425-
E424 - Seat height adjustment button Master Seat Switch -E418- / -E421- / -E424- / -E425-
E425 - Backrest adjustment button Master Seat Switch -E418- / -E421- / -E424- / -E425-
T4c - 4-pin connector
T4e - 4-pin connector
T4i - 4-pin connector
T4w - 4-pin connector
T6bz - 6-pin connector, under the driver seat
T10a - 10-pin connector, under the driver seat Overview of connector stations and connectors
T10ac - 10-pin connector
V28 - Driver seat forward/back adjustment motor Driver Seat Forward/ Back Adjustment Motor -V28-
V45 - Driver backrest adjustment motor Driver Backrest Adjustment Motor -V45-
V138 - Driver seat height adjustment motor Driver Seat Height Adjustment Motor -V138-
V231 - Seat angle adjustment motor Seat Angle Adjustment Motor -V231-
(44) - Ground connection on A-pillar, lower left Overview Of Ground Connections in Interior
(96) - Ground connection 1 (in heated seats wiring harness)
(B328) - Positive connection 14 (30a) (in main wiring harness)
(M1) - Positive connection 1 (30) (in seat adjustment wiring harness)
Previous Diagram 13/2 (Tracks 1-14)
Next Diagram 13/4 (Tracks 29-42)