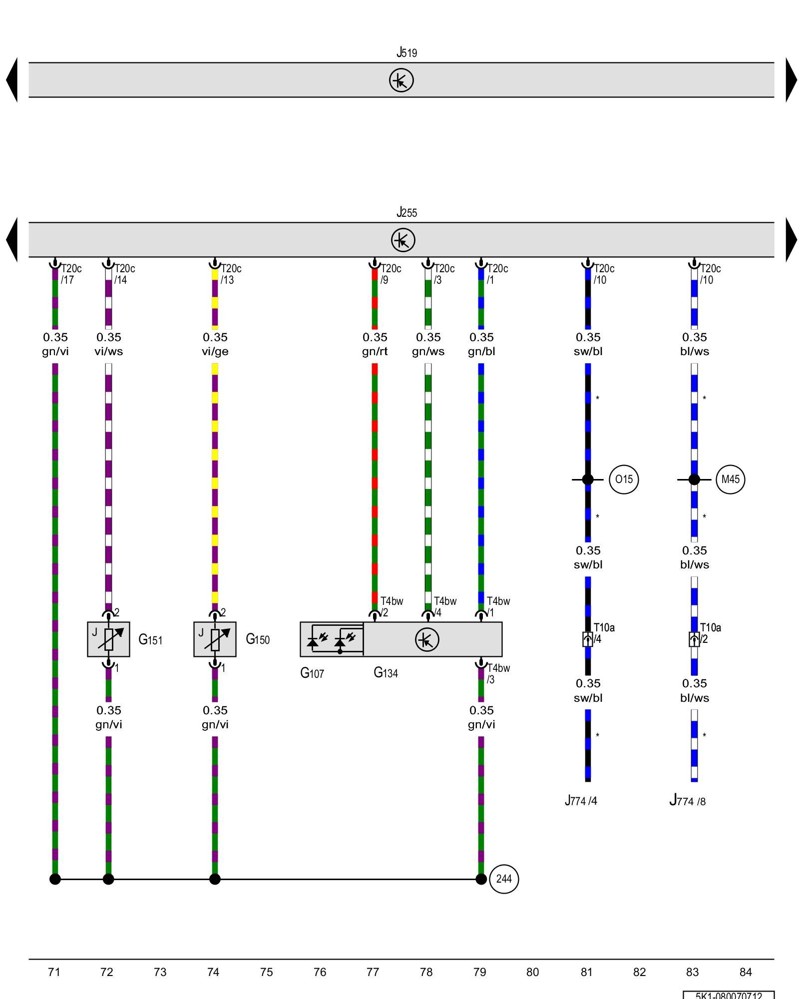
Diagram 80/7 (Tracks 71-84)
IMPORTANT NOTE:
This manufacturer uses "Track" style wiring diagrams.
For information on how to use these diagrams effectively, please refer to Diagram Information and Instructions. Diagram Information and Instructions
Sunlight photo sensor, Sunlight photo sensor 2, Left vent temperature sensor, Right vent temperature sensor, Climatronic control module

ws = white
sw = black
ro = red
br = brown
gn = green
bl = blue
gr = grey
li = lilac
ge = yellow
or = orange
rs = pink
G107 - Sunlight photo sensor Climatronic (Automatic Climate Control) A/C System w/ Automatic Control Overview Diagrams
G134 - Sunlight photo sensor 2 Climatronic (Automatic Climate Control) A/C System w/ Automatic Control Overview Diagrams
G150 - Left vent temperature sensor Climatronic (Automatic Climate Control) A/C System w/ Automatic Control Overview Left Vent Temperature Sensor -G150-
G151 - Right vent temperature sensor Climatronic (Automatic Climate Control) A/C System w/ Automatic Control Overview Right Vent Temperature Sensor -G151-
J255 - Climatronic control module, behind the center console Climatronic (Automatic Climate Control) A/C System w/ Automatic Control Overview Climatronic (Automatic Climate Control) Control Module -J255-
J519 - Vehicle electrical system control module Control modules in front part of vehicle - Overview of Control Modules
J774 - Front seat heating control module Control Modules in The Rear Of The Vehicle [1][2]Diagrams
T4bw - 4-pin connector
T10a - 10-pin connector, under the driver seat Overview of connector stations and connectors
T20c - 20-pin connector
(244) - Sensor ground connection (in Climatronic wiring harness)
(M45) - Connection 5 (in driver seat wiring harness)
(O15) - Connection 4 (in heated seats wiring harness)
* - Only for vehicles with an auxiliary heater
Previous Diagram 80/6 (Tracks 57-70)
Next Diagram 80/8 (Tracks 85-98)